
Pattaya is a two hour drive from Bangkok. Historically, it was famous for beautiful long beach and unobstructed sea view. However, lacking local regulations, the beach is now crowded with nightclubs and bars.

In order to avoid the noisy beach, Hilton Pattaya, a 200 room hotel, is a floating full-service hotel above a multi-use shopping, dining and cinema complex.

TROP, a landscape architectural design studio, is responsible for creating an urban sanctuary hidden from chaotic beach below.

The designer’s goal is to re-connect the landscape with Pattaya's beautiful sea view. Because of the limited area, they had to re-organise the overall spatial structure of the garden.

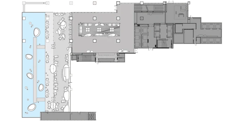
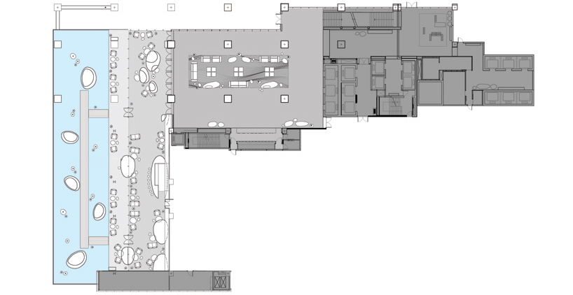
Strategically, the designers divided the garden into three main components. the first component is the sand court. This sand court is also the arrival area.

Only two materials are used in the design, sand and green land-form. Sand is chosen because of its relationship with ocean and beach.

It is also used as a piece of canvas for all the hotel’s installations throughout a year. the second is the sun deck. to maximise the garden area, another 'Layer of Landscape' is added on top of the gym and toilets.

Their roofs are extended and connected with the hotel’s 17th Floor, 1 floor above the lobby. the result is a reasonable-size deck with a direct access from the hotel.

Instead of walking through the lobby, guests can walk directly to the pool area. the infinity pool is strategically placed at the edge of the roof, making its water visually connected with the ocean below.

It is designed as one big sheet of water with lap pool, fun pool, jacuzzi maze, and a kids pool hidden underneath the same water surface.

Inspired by a school of shiny fish, they added fibre optic lighting to the bottom of the pol.

So, at night, the it glows like those silvery fish giving the same effect as stars. Combining the three components together, they managed to create a true hidden sanctuary above Pattaya’s Skyline.




