
A stark white ship that sails in the middle of the bustling sea of colors. the ship floating on the ocean suddenly appears in a shopping center.

It evokes a feeling not of a resort area, but of an exotic corner of a town in some southern country. A feeling of a ship that comes across this area by chance.

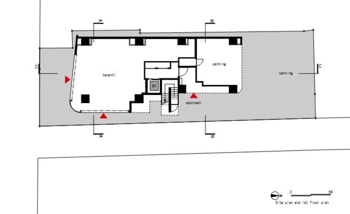
It makes you imagine the wave splashes that occur when the bow heads-on through the sea. It is a pencil building of 9.7 meter width and 21.6 meter depth. Big holds are designed for the balconies at the southwest corner.

These holes become bigger as the floors go upwards from the bottom. You can have the same image when you look up the bow from under it. It is simple, neat and clean. You look up the smooth and pure white exterior wall.

This reminds you of a cool life style in some southern country, or of being on a trip, and spending days at a tropical land in a quest of change of air. It is an apartment house for rent built at Ibaraki-city in Osaka, a town with a population of 270,000.

This town is not only a residential one, but it is now calling for the development of industrial areas for research and development facilities of universities and industrial firms.

Therefore, the population is also increasing as an industrial town. This architecture is built at the shopping district, the center of this town, which is located in front of the Jr station.

It is a building of 10 stories of Rc structure consisting of:?a tenant spaces at the first floor, one room apartment houses for singles at 2-4 floors, and 2Ldk and 3LDk for families at 5-10 floors.

The surrounding buildings are 4-5 stories height. So it is not proper to have a big slit (opening section) for this building.

The open space of each floor gets wider as the floor level becomes higher, and you can get a wider sky view. This idea is reflected in the design of this building.



Location: Osaka, Japan Architects: Eastern designoffice Structural Engineering: Ihara Structural Engineers Contractor: Matsumotogumi Co., Ltd Site Area: 384.38 m2 Total Floor Area: 1,548.85 m2 Photographer: Koichi Torimura