
Dopo Fuksas, Jean Nouvel e Renzo Piano una nuova firma si aggiunge alla lista degli architetti internazionali che hanno lasciato il segno a Maranello, la patria della mitica Ferrari, con un intervento di Arata Isozaki e Andrea Maffei per la realizzazione della nuova biblioteca Mabic.

Il progetto, vincitore nel concorso indetto nel 2007, è il risultato di una lunga collaborazione tra il maestro giapponese e Maffei che inizia dallo studio di Tokio per proseguire come responsabile dei progetti italiani del Palahockey, del parco di Piazza d’Armi e della piscina olimpionica nel capoluogo piemontese, della nuova sede della Provincia di Bergamo, della nuova uscita del museo degli Uffizi, e come cofirmatari del progetto della nuova stazione di Bologna e ora del progetto della torre che sorgerà a Milano a City Life.

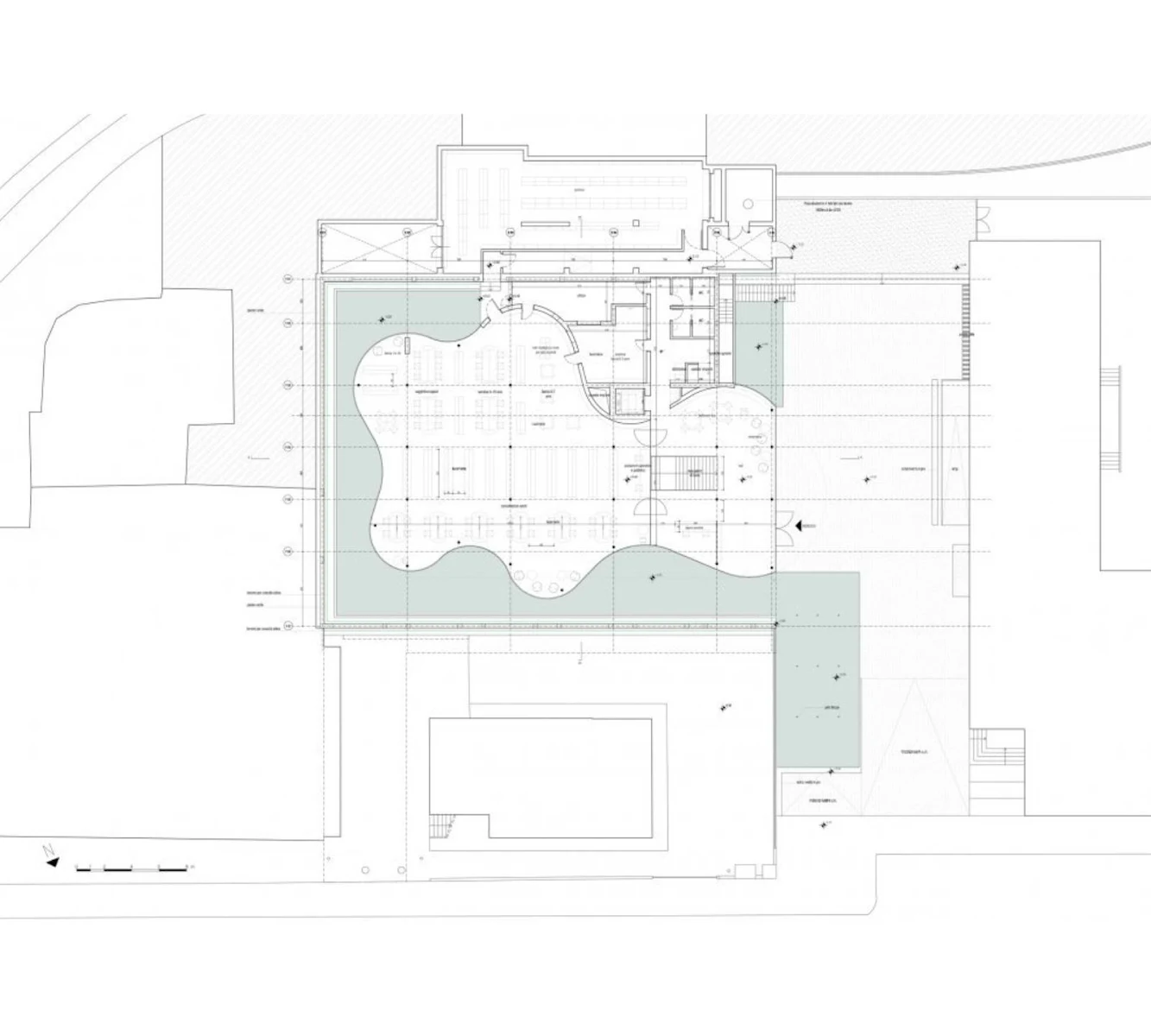
Il Mabic è localizzata in un’area urbana occupata precedentemente da un capannone industriale in un contesto delicato circondato da edifici su tre lati. All’interno dei muri perimetrali dell’ex capannone, mantenuti dal progetto, la nuova biblioteca si inserisce con una forma organica e con una sagoma curvilinea che rievoca le linee della sedia Marilyn disegnata da Isozaki nel 1973.

L’area rimanente tra i muri perimetrali esistenti, vegetati con edera, e la parete ondulata trasparente è stata trattata con uno specchio d’acqua su un fondo di ghiaia bianca per ricreare un’atmosfera ideale per lo studio e la lettura ed accentuando il volume dell’edificio, che risulta praticamente circondato di acqua e verde, creando un effetto di “isola” dell’edificio.

In quest’area si evidenziano i riferimenti agli elementi tipici del giardino zen, appartenente alla cultura di Isozaki e probabilmente acquisita da Maffei nei suoi frequenti soggiorni in Giappone, per ricreare quelle sensazioni di tranquillità e meditazione che ben si addicono anche ad un luogo di cultura.

La hall d’ingresso, evidenziata da una pensilina, funge da aggregatore di diverse funzioni che oltre all’emeroteca e il banco prestiti dei libri, contiene anche un banco per la sede del Consorzio Maranello Terra del Mito, e, sul lato opposto, l’Isola tematica Cultura Locale, lasciando al centro la scala di collegamento con la sala conferenze sul piano interrato e i servizi necessari.

In riferimento ai recenti progetti di biblioteche che fungono da contenitori culturali che ampliano e interagiscono con funzioni diverse, anche in questo progetto si cerca di aggregare diversi spazi culturali della tipicità locale, ma in questo caso appare più il risultato di una determinazione imposta che da una soluzione progettuale ricercata mancando di una loro precisa identità e riconoscibilità.

Una parete vetrata intermedia suddivide la hall dagli spazi dedicati alla consultazione che si presenta come un open space che ritrova una sua linearità, che si contrappone alle pareti curvilinee trasparenti esterne, con una suddivisione geometrica che distribuisce lateralmente le diverse sale lettura, suddivise per fasce di età, lasciando nell’area centrale le scaffalare bianche per i libri.

Tale soluzione lascia il perimetro sgombro da qualsiasi scaffale o elemento visivo, lasciando libera la vista verso l’esterno, dando una sensazione di apertura e ariosità che si diversifica dai luoghi chiusi ed austeri delle classiche biblioteche, e si contraddistingue con uno stile etereo accentuato anche dal’assenza di colore dato dall’utilizzo del bianco assoluto per gli arredi tranne per qualche accessorio o seduta sui toni pastello nell’area della ludoteca.

Ovviamente anche l’illuminazione rispetta i canoni della naturalezza, favorita dalle ampie pareti vetrate e da alcuni oblò sul soffitto, integrata da faretti fluorescenti ad incasso che equilibrano la luminosità mantenendola costante in tutte le ore del giorno. Una soluzione che ottimizza il risparmio energetico al quale è stata posta un’attenzione con l’uso di un impianto geotermico, uno a panelli solari ed un sistema di raccolta delle acque piovane utilizzate anche per irrigazione.




Location: Maranello, Italy Architect: Arata Isozaki e Andrea Maffei Project Team: Alessandra De Stefani e Carlotta Maranesi, Simone Utzeri, Maurizio Petronio / Andrea Maffei Architects Structure: Studio Sbrozzi Lighting Design: Koichi Tanaka, M+K Design Contractor: Cooperativa Muratori Reggiolo, Manutenzioni Generali Reggiane Construction Manager: arch. Andrea Maffei Area: 1.175 m2 Year: 2011 Cost: € 2,870 mil Photographs: Alessandra Chemollo