
This Music Academy is situated at the end of “Henri Fabre” Park and surrounds a planted patio. the windows of the reading room are open towards the forest.

The Albert Camus Multimedia Library and the Albert Magnard Conservatory are the result of exploration into a building’s filters, skin and volume.

The mineral exterior skin references the color and patterns of Sumerian Cuneiform script on clay tablets – one of humanity’s first known systems of writing.

The façade’s texture rustles like foliage and filters the exterior light. the two contrasting programmatic functions of this cultural building coexist in the same horizontal volume.

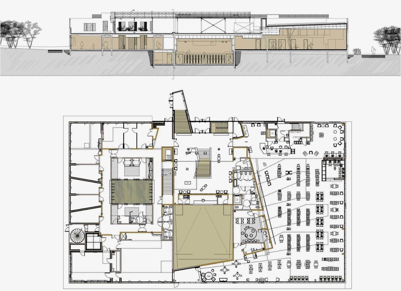
The building is inserted lightly in the lightly sloping terrain. in the heart of the building, a central staircase drops below a highly luminous atrium. It guides the visitors to the 100-place theatre situated on the basement level.

The project’s layered interior concrete uses mineral density to give the impression of natural mass, while providing softness to the interior circulation and library reading room.

This sustainable project camouflages its technical equipment on the roof. the Solar panels, roof-top garden and natural materials all contribute towards a calm environment.

The Music Conservatory’s spaces are organized around a central courtyard, opening out to the north for the musicians, and to the forest for the library. the project is accompanied by the renovation of its surrounding park, including an open-air amphitheater and a landscaped car park.









Location: Évry, France Architects: DE-SO Architect in Charge: François Defrain, Olivier Souquet Collaborators: Youngsong Park, Matthieu Janand, P. Reynes Structural Engineering: Ote Ingénierie Mechanical/Plumbing/ Electrical Engineering: OTE Graphic Design: Atelier 59 Area: 2,710 sqm Year: 2013 Client: Community of Agglomeration Evry-Essonne Photographs: Hervé Abbadie