
The image of Rossignol, a longstanding leader in ski equipment, is closely linked to mountains and snow. the design of its international headquarters is a world away from the typical office building, and instead pays homage to nature and peaks, as well as technology, inseparable from high-level sports.

A landscaped roof the building has been specially designed for Rossignol and is inspired by the fluidity of movement in snow sports, as well as the snowy peaks and glaciers sculpted by the elements. the topography of the roof, which wraps around the building, merges with the natural landscape, its organic wood-clad form reflecting the shapes of the surrounding mountains.

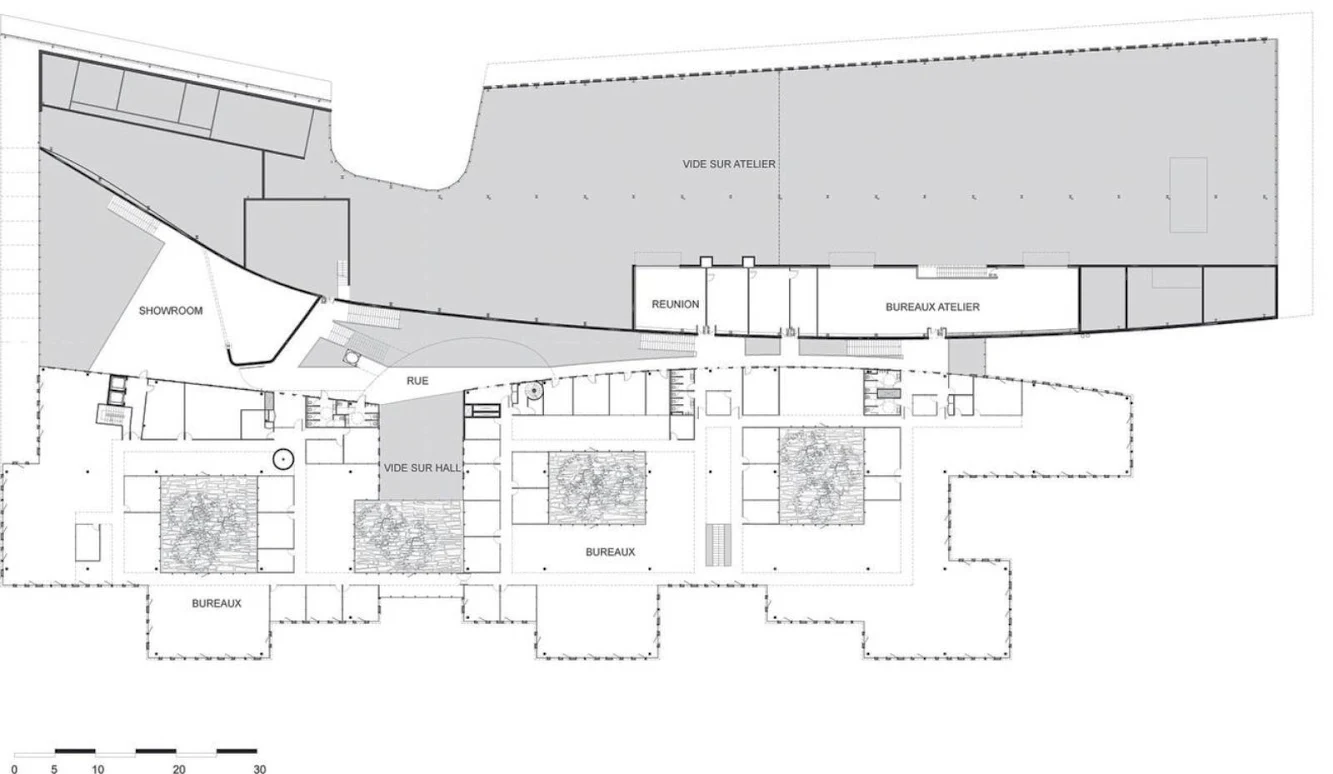
The roof covers three different types of area:
- The production and technical spaces which line the motorway side of the site;
- The street, which cuts through the building: welcoming, spectacular and filled with light;
- Offices.

On the motorway site, the façade creates a kinetic and dynamic vision, reinforced by the repetition of the logo, which emerges gradually. the curved façade becomes the roof over the production units, before rising up to its ridge and descending on the other side across the offices.

At this point it is pierced by patio courtyards planted with birch trees which appear to perforate the roof. the irregular outline of the roof and the office façades allows the possibility of adding extensions as needs arise, without disrupting the harmony and identity of the building. Right from the start, the architecture generates a process of growth.

The roof ridge sits above the street, flanked by a glass façade and the high altitude restaurant, the highest point of the building, which echoes the buildings found at the top of ski slopes: with its panoramic outlook, the terrace extends across the roof for al fresco dining, with magnificent views of the mountains, hidden away from the noise of the motorway.

The Rossignol “family” the Rossignol Group will bring different entities together on this site; these are currently split in different locations but they all contribute to the identity of the Rossignol “family”. Inside, the building functions like a hive, enabling different areas of activity to cross paths, making them accessible and allowing people to enjoy working and socialising together.

The originality of the project is the way it brings in other activities alongside the administrative departments:
- The racing skis production unit, to act as a technological showcase for the brand;
- The R&D and Design departments, located at the heart of the building;
- Two showrooms to present Rossignol and Quiksilver products.

Each different role — engineering, design, technical, secretarial, sales, etc — will cross paths with the others. to encourage this internal communication, social spaces are dotted throughout the building. the restaurant, situated at the top, right over the street, has been designed as a special place to enjoy the life of the Group, with two large glass façades framing panoramic views of the sky and mountains, one overlooking Vercors, the other Chartreuse. Either on the terrace or beside a log fire, this space turns lunch breaks into a unique experience.

Respect for the environment the design of the structure aims for minimal environmental impact. the technical choices made have produced an efficient building with a low energy requirement and good insulation. It is protected from the summer sun by an untreated wooden roofover. Installations will be optimised and the heat given off by the workshop machines will be recovered and passed back through the heating system. Particular attention has been paid to water management: rainwater is collected, and industrial water and water recovered from the roads is de-polluted.










Location: Centr’alp 2 - Saint Jean de Moirans, France Architect: Hérault Arnod Architectes Project Team: Jérôme Moenne-Loccoz, Alexandre Pachiaudi, Camille Bérar, Nicolas Broussous, Matthias Jäger Landscape designer: Cap Paysages Structure: Batiserf Area: 11,600 sqm Cost: 20.2 million € Year: 2009 Client: Skis Rossignol Sas Photographs: André Morin, Gilles Cabella