
French architects Opus 5 have carried out the rehabilitation and extension of the new Louviers Music school in the old convent of Penitance, a monastery situated on water, unique in Europe.

This seventeenth century convent, in Louviers, Normandy, has served a variety of uses over the years and has housed a church, a prison and a tribunal court, but was converted into a music school in 1990.

The brief was to offer Louviers a new musical school, modern, functional, attractive and representing the town’s cultural policy. the project aims to display a new image of the place and to shed its prison characteristics.

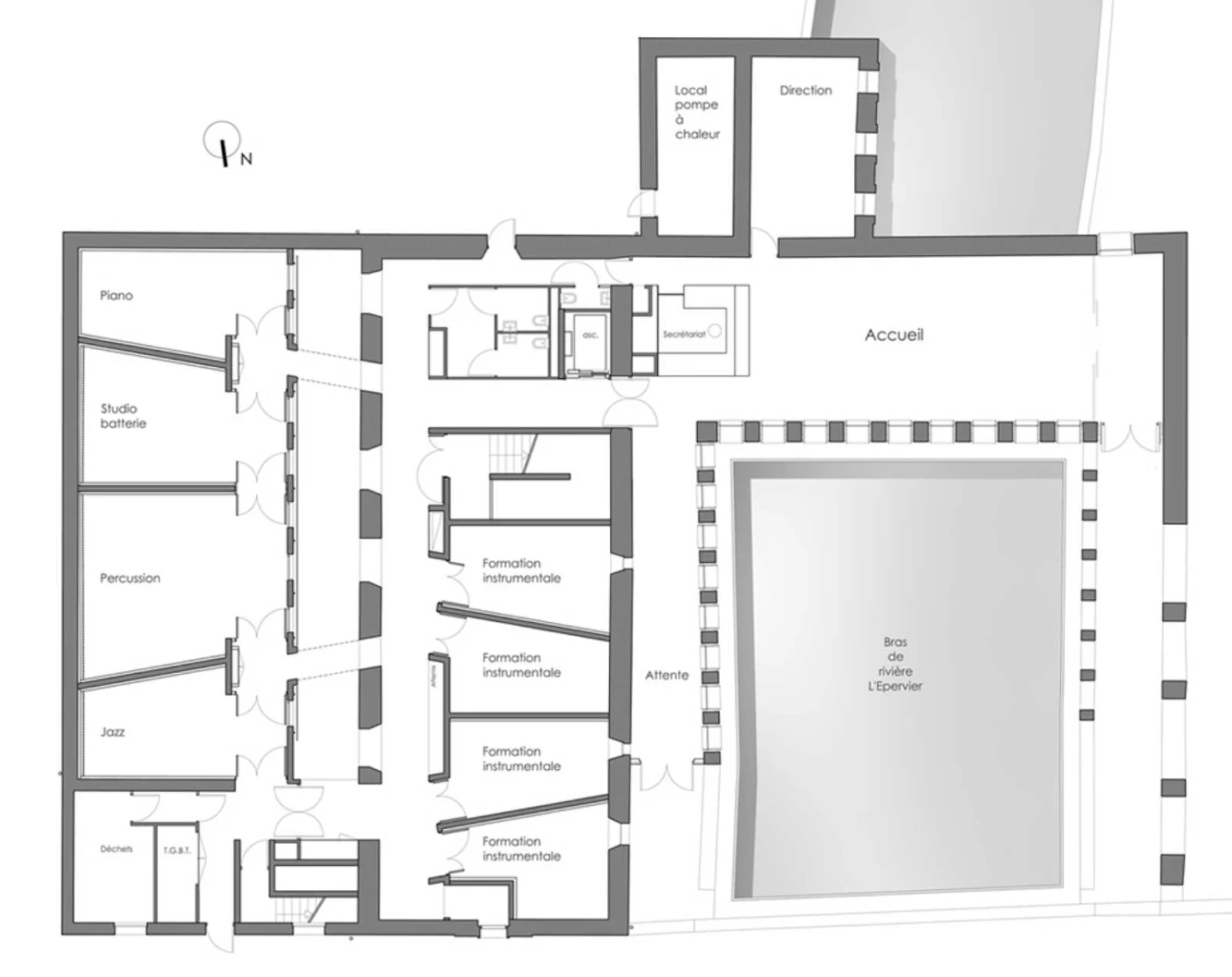
The program consists of 24 classrooms, a library and two big orchestra rooms. These were conceived in a very tight plot which led the architects to fill all free spaces and raising these extensions on top of existing walls.

The result is a compact project where the new parts dominate the ancient elements; however, the historical construction is still governing.

This is an ‘intimate’ program within each task requires isolation and concentration and will adapt to the compact and intimate character of the project.

The south extension, replacing the missing parts of the south wing, exposes its front to the water, towards the cloister and the city. Its incredible position represents the key of the project.

It hosts the major element of the program: the big orchestra hall. It represents the emblem of the musical school and composes the landscape with natural elements.

This façade fits in a simple rectangular glass box with chrome stripes reflecting the surrounding environment and fading in the sky. It appears as an echo to music and as a poetic image of the sound.

The North façade is made of laminated glazed panels within the inside layer has been coated with mirror finish; and the frontier façades are made of prefabricated concrete panels. They are cut out to follow the surface of the ancient masonry.






Location: Louviers, France Architect: Opus 5 architectes Structural Engineering: Batiserf Fluids & services Economist: Votruba BET Structure: Batiserf BET Fluids: Choulet Acoustic: Impédance Cost: 5.000.000 € Area: 2.050 sqm. Year: 2012 Client: the Town of Louviers Photo: Luc Boegly